home    
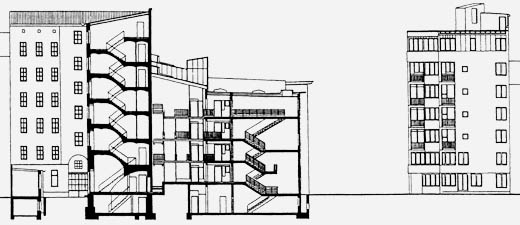
  Altenwohnhaus
am Schlesischen Tor
Berlin
 

 

 

     
  Schnitt