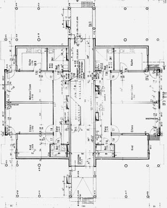
home    
  Integriertes Wohnen,
Volpinstrasse,
München